Strakke halfopen bebouwing in Aalst
Deze strakke halfopen bebouwing in Aalst is allesbehalve alledaags. Het smalle, ondiepe perceel en de slechte grond dwongen ons out of the box te denken. Met een lichtgewicht staalframe en een doordacht ontwerp wisten we alle ruimte maximaal te benutten. Meer nog: deze woning springt eruit door de vele buitengewone details.
Project
Nieuwbouw: strakke halfopen bebouwing
Bouwwijze
Staalframe
Bouwplaats
Aalst
Oppervlakte
216 m²
Jaar
2023
Strakke halfopen bebouwing: allesbehalve alledaags
Dit jonge gezin met 1 kindje en een baby op komst kwam bij mij terecht via een gemeenschappelijke vriend. Het klikte direct. Met een eerder beperkt budget wilde het koppel een strakke halfopen bebouwing. Niet al te groot, maar net ruim genoeg voor mogelijks nog een derde telg erbij.
De bouwgrond lag op een toffe locatie in Aalst en het gezin koos al van bij de start voor een uitgesproken stijl. Zowel buiten als binnen mocht de woning opvallen, er echt uit springen. Het mocht allesbehalve alledaags zijn.
Maar … het perceel was klein met een zeer kleine bebouwbare oppervlakte. Dat werd meteen ook onze grootste uitdaging: slim omspringen met de beschikbare ruimte.
Wij hadden al meerdere architecten bezocht en kozen uiteindelijk voor Melissa. Haar moderne stijl beviel ons wel, ze is mee met de hedendaagse trends. Doorslaggevend was de goeie prijs-kwaliteitverhouding. Melissa is heel toegankelijk en komt haar beloftes na. Onze samenwerking verliep dan ook heel vlot. De eerste bouwaanvraag werd wel geweigerd, maar dat lag buiten onze macht. Melissa paste de plannen meteen aan en bleef ook naar ons toe flexibel, tot op het allerlaatste moment. Ook het probleem met de slechte grond werd slim opgelost. Tevreden met het resultaat! Wij raden Melissa Mertens Architect zeker aan en hebben trouwens al vrienden doorgestuurd. 😊
Zeer smal, ondiep perceel en ook nog eens slechte grond …
Concreet werden we voor volgende uitdagingen gesteld:
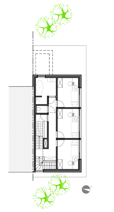
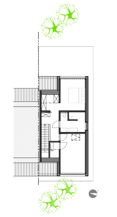
- De strakke halfopen bebouwing kon max. 6 meter breed zijn (buitenmaat) en slechts 12 meter diep. Zeer smal en ondiep dus om alle gewenste ruimtes in te laten passen en het ruimtegebruik optimaal te houden.
- Daarbij komt dat het gezin – met het oog op hun toekomstige kroost – graag 4 slaapkamers, 2 badkamers, een dressing en genoeg bergruimte wilde integreren in de beschikbare 200 m².
- Een onverwachte tegenvaller bleek de zeer slechte grond. Het resultaat van de eerste sonderingen (grondboringen om de draagkracht van de grond te meten) was ronduit slecht. In die mate dat op palen bouwen de enige uitweg leek, iets wat de bouwheer minstens 30.000 euro extra zou kosten.
Een lichtgewicht staalframe en een doordacht ontwerp
Gelukkig vonden we voor elk van onze uitdagingen een slimme oplossing:
- Bouwen op palen was budgettair niet mogelijk, dus verkenden we samen met de ingenieur andere opties. De keuze viel op een lichtgewicht staalframe als bouwmethode. Een staalframe lijkt op een houtskelet met als voordeel dat de muren minder dik zijn, wat meer ruimte betekende.
- Extra voordeel bij een staalframebouw is dat pleisterwerken niet nodig zijn. In plaats daarvan werk je met gipskarton, iets wat je makkelijk ook zelf kan plaatsen. De bouwheer was een handige harry en stond te trappelen om dit zelf te doen. Daardoor spaarde het gezin extra centen uit.
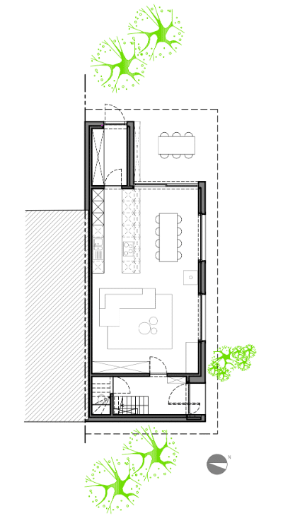
- Om de beschikbare ruimte maximaal te benutten, plaatsten we voordeur, inkom en trappenhal aan de straatkant. Alle overige ruimte beneden werd volledig open gelaten voor de leefruimtes en de keuken. Zo hielden we de circulatieruimte zeer compact.
- Ook de verdere indeling van de ruimtes werd doordacht aangepakt. Op de bovenste verdieping voegden we twee dakkapellen toe voor extra ruimte. Ze geven de woning ook extra cachet langs buiten en langs binnen is het een zeer toffe eyecatcher.
Toegegeven, dit project had wel wat voeten in de aarde. Maar eens we wisten waarnaartoe, verliepen de bouwwerken vlot. Bij het metselen van de gevelsteen liet de metselaar evenwel een paar steekjes vallen. In goede verstandhouding kwamen we ook hier tot een gepaste oplossing.
Strakke halfopen bebouwing met buitengewone details
Het eindresultaat mag er echt wel zijn. Bij deze strakke halfopen bebouwing zijn het vooral de buitengewone details die de hoofdrol spelen:
- Voor het exterieur diende de Linea bruine gevelsteen als de basis, waarop de rest van de gevel werd afgestemd. Zo matchen de zinken kraaltjes als afwerking aan het dak en als dorpels onder de ramen hier perfect mee.
- De speciale dakgoten, het verticaal metselwerk, het extra bandje in de gevel, de dakkapellen, … geven het geheel een strakke, niet-alledaagse look. Deze woning valt op in het straatbeeld, precies zoals de bewoners het wilden.
- Die strakke look werd doorgetrokken naar het interieur, waar we vertrokken van de lichte bruintint van de gepolierde betonvloer. De keuken is afgewerkt in matzwart en een travertijn (kalksteen) keukenblad met afgeronde hoeken voor een zachte touch. De badkamers zijn bekleed met mortex in een gedurfd terracottaroze en groene marmer.
- Samen met een verlichtingsspecialist werd het lichtplan uitgetekend met als doel een warm en strak interieur te bekomen. Dit licht komt ook echt tot leven door de speciale verftechniek op de muren.
De bewoners zijn tevreden en ikzelf ben ook zeer trots op dit project. Dankbaar dat dit gezin me de vrijheid gaf om out of the box met hen mee te denken.
Wat vind je van deze halfopen bebouwing?
In Stekene begeleidde ik een ander jong gezin met hun woondroom, ook een moderne halfopen bebouwing. Ze wilden graag zoveel mogelijk licht met zo weinig mogelijk inkijk. Het resultaat zie en lees je hier: Moderne halfopen bebouwing in Stekene.
